Пристройка к дому, находящемуся в долевой собственности

СНиП(ы). Строительные нормы. Порядок получения разрешения на строительство дома. Новое строительство.

Модератор: admin

Пристройка к дому, находящемуся в долевой собственности

Сообщение потехин » Вт мар 31, 2009 17:18

Здравствуйте!
В долевой собственности находится кирпичный дом. Дом и участок были разделёны по решению суда
Дом расположен в черте города, земли ЛПХ, у меня имеются свидетельства о собственности на дом и землю, у соседей после смерти предыдущего хозяина пока нет (делят наследство).
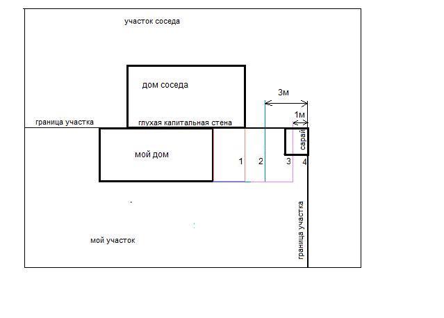
Пожалуйста, посмотрите рисунок (кликните по нему, он увеличится). На нём схематически изображены наши участки и дом.
В углу находится мой сарай, который есть в БТИ.
Я хочу возвести одноэтажную пристройку к своей части под отдельной крышей.
В пристройке будут находиться тамбур (вход в дом), санузел и сарай с отдельным входом.
Могу ли я расположить пристройку вдоль границы участка, продолжая глухую стену между нашими частями таким образом,
как изображено на рисунке?
Если да, то по какой линии (1,2,3 или 4)?
Или я должен буду отступить и от этой границы?
Как быть с сараем, могу ли я присоединить его к дому?
Какие документы мне будут необходимы для начала строительства?
Спасибо!
С уважением,
Борис
Вложения
схема.jpg
потехин
 
Сообщения: 9
Зарегистрирован: Пт июл 04, 2008 19:48
Откуда: Пушкино МО

Сообщение Калинин » Чт апр 02, 2009 19:15

Так как Ваш земельный участок является самостоятельным объектом недвижимости, то на него распространяются все нормы, которые применяются при строительстве на территории соседних участков.
Согласно п. 5.3.4. СП 30-102-99 «Планировка и застройка территорий малоэтажного жилищного строительства», принятых Госстроем России (постановление от 30. 12.99 № 94) до границы соседнего приквартирного участка расстояние по санитарно-бытовым условиям от дома должны быть не менее трех метров, от постройки для содержания скота – 4 м, от других построек (бани, гаража и т.д.) – 1 м, от стволов высокорослых деревьев – 4 м, среднерослых – 2 м, кустарника – 1 м.
Вместе с тем, п. 3 ст. 245 ГК РФ определено, что участник долевой собственности, осуществивший за свой счет с соблюдением установленного порядка использования общего имущества неотделимые улучшения этого имущества, имеет право на соответствующее увеличение своей доли в праве на общее имущество.
Отделимые улучшения общего имущества, если иное не предусмотрено соглашением участников долевой собственности, поступают в собственность того из участников, который их произвел. То есть для проведения улучшения необходимо получить согласие всех участников общей долевой собственности
Калинин
 
Сообщения: 2812
Зарегистрирован: Вс мар 20, 2005 20:31

Сообщение потехин » Вт апр 07, 2009 19:25

Спасибо за ответ!
Калинин писал(а):... от других построек (бани, гаража и т.д.) – 1 м...

Приведите, пожалуйста, полный перечень таких построек.
С уважением,
Борис
потехин
 
Сообщения: 9
Зарегистрирован: Пт июл 04, 2008 19:48
Откуда: Пушкино МО


Вернуться в ВОПРОСЫ СТРОИТЕЛЬСТВА ЧАСТНЫХ ДОМОВ. СТРОИТЕЛЬНЫЕ НОРМЫ И ПРАВИЛА

Кто сейчас на конференции

Сейчас этот форум просматривают: нет зарегистрированных пользователей и гости: 14